Italiano
309.000 €

VILLA UNIFAMILIARE INDIPENDENTE DI NUOVA COSTRUZIONE

Villa in vendita • Romano di Lombardia
In bellissima zona residenziale di Cortenuova, a soli 8 minuti da Romano, proponiamo in vendita nuove unità abitative in bioedilizia di prossima costruzione.
Le case ecologiche in legno di "Residenza Valeria" sono indipendenti, progettate con cura, resistenti, sicure e confortevoli.
Costruite con tecniche e soluzioni impiantistiche innovative, le abitazioni in legno si differenziano per basse emissioni in ambiente, alte prestazioni, fonti rinnovabili con altissimo risparmio energetico.
Ville Indipendenti in Classe A4 inserite in un contesto abitativo di sole ville singole, con un elevato standard qualitativo, consumi energetici ridotti di circa il 70%, con un risparmio medio annuo pari a circa 2.000,00 €.
Possibile recupero fiscale pari ad € 15.000,00 per l'acquisto del box !
L’impianto di riscaldamento e raffrescamento ad alta efficienza energetica utilizza una pompa di calore con tecnologia inverter; oltre ad un accumulo da 250/300 litri per produrre acqua calda ad uso sanitario.
Predisposizione addolcitore, allarme e fibraottica. Impianto di ventilazione meccanica, in modo da consentire un ricambio dell’aria interna con quella esterna, attraverso uno scambiatore di calore che la miscela e la purifica. Realizzazione di impianto fotovoltaico da circa 3 Kw.
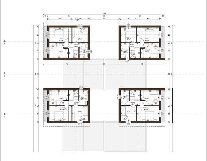
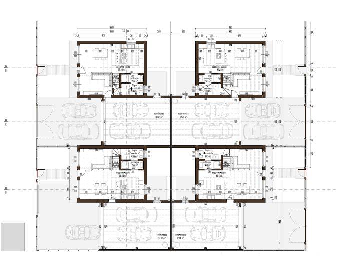
La villa si dispone su due livelli di ampie dimensioni per un totale di 120mq, zona giorno al piano terra e zona notte al piano primo, area esterna e box di 50 mq.
La richiesta di abitazioni in bioedilizia e soluzioni "green" è in forte e costante crescita, spinta da normative europee e una maggiore sensibilità dei consumatori.
​Ecco i dati principali per il 2026:
​Mercato globale: Il settore delle "Green Buildings" è stimato a circa 461 miliardi di dollari nel 2026, con un tasso di crescita annuale (CAGR) superiore al 10%.
​Situazione in Italia: Il fatturato della filiera dell'edilizia in legno (punta di diamante della bioedilizia) si è stabilizzato sopra i 2,3 miliardi di euro. Un dato significativo è che il 60% delle nuove scuole nel 2025-2026 è progettato in bioedilizia.
​Driver normativi: La direttiva UE "Case Green", che l'Italia deve recepire entro maggio 2026, impone standard energetici severissimi che rendono la bioedilizia non più una nicchia, ma una necessità tecnica per mantenere il valore degli immobili.
​Preferenze dei consumatori: Oltre il 75% degli acquirenti predilige aziende con pratiche sostenibili. I prodotti certificati "green" registrano una domanda superiore del 13-14% rispetto a quelli tradizionali.

Le metrature riportate nell'annuncio sono commerciali il tutto salvo errori e/o omissioni.
Le fotografie, le misure e le descrizioni del presente annuncio sono puramente indicative e pertanto non costituiscono vincolo contrattuale.

L'agenzia immobiliare Tempozero di Lanzani Gianluigi, oltre alle normali attività di agenzia, affronta con i propri clienti la fase istruttoria precedente all’atto notarile, mettendo a frutto tutta l'esperienza nell’analisi dei documenti che consentono di acquistare un immobile con la massima serenità.
Inoltre siamo specializzati nella commercializzazione di tutti quegli immobili soggetti a procedure esecutive che vanno dal semplice incaglio nel pre-contenzioso fino all’esecuzione giudiziaria (ASTE), con possibili saldi e stralci, compreso il ramo fallimentare, su tutto il territorio nazionale.
Caratteristiche principali
Codice
V001529
Città
Romano di Lombardia
Categoria
Villa
Prezzo
309.000 €
Locali
4
Camere
3
Bagni
2
Mq
120
Box
2
Mq Box
23,46
Posti auto
1
Mq Giardino
5,25
Piano
Terra
Classe energetica
A4
Stato Immobile
Prossima Realizzazione
Grado
Signorile
Lati Liberi
4
Giardino
Privato
Tipo Soggiorno
Soggiorno
Tipo Cucina
A Vista
Riscaldamento
Autonomo
Tipo Riscaldam.
Pompa di Calore
Tipo Impianto
Pavimento
Fonte Energetica
Elettrico
Acqua Calda
Boiler elettrico annuale
Raffrescamento
Pavimento
Accesso Disabili
Nessuna Barriera

Accessori: Antifurto, Cancello Elettrico, Fibra Ottica, Lavanderia, Porta Blindata

Richiedi informazioni
Invia
Condividi su