Italiano
119.000 €

QUADRILOCALE DI 120 MQ

4 o più locali in vendita • Martinengo - VIA TRIESTE, 14
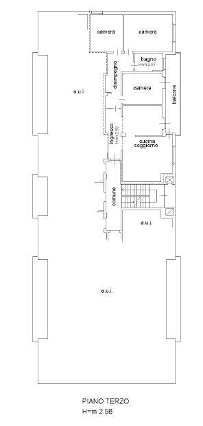
Appartamento al terzo piano, composto da disimpegno, cucina con ampio balcone, soggiorno, tre camere da letto, di cui una con balcone, e bagno.
Al piano seminterrato cantina e autorimessa.

Le metrature riportate nell'annuncio sono commerciali il tutto salvo errori e/o omissioni.
Le fotografie, le misure e le descrizioni del presente annuncio sono puramente indicative e pertanto non costituiscono vincolo contrattuale.

L'agenzia immobiliare Tempozero di Lanzani Gianluigi, oltre alle normali attività di agenzia, affronta con i propri clienti la fase istruttoria precedente all’atto notarile, mettendo a frutto tutta l'esperienza nell’analisi dei documenti che consentono di acquistare un immobile con la massima serenità.
Inoltre siamo specializzati nella commercializzazione di tutti quegli immobili soggetti a procedure esecutive che vanno dal semplice incaglio nel pre-contenzioso fino all’esecuzione giudiziaria (ASTE), con possibili saldi e stralci, compreso il ramo fallimentare, su tutto il territorio nazionale.
Caratteristiche principali
Codice
V001526
Città
Martinengo
Categoria
4 o più locali
Prezzo
119.000 €
Spese condominiali
1.200 € / anno
Locali
4
Camere
3
Mq
120
Mq Box
12
Piano
3
Classe energetica
F
216,05
Stato Immobile
Abitabile
Grado
Medio
Orientamento
Est
Giardino
No
Tipo Soggiorno
Soggiorno
Tipo Cucina
A Vista
Riscaldamento
Autonomo
Tipo Riscaldam.
Caldaia
Tipo Impianto
Radiatori
Fonte Energetica
Metano
Acqua Calda
Caldaia
Raffrescamento
Split
Infissi
PVC Doppio Vetro
Serramenti
Ottimo
Persiana
Tapparella PVC
Pavim. Giorno
Ceramica
Pavim. Notte
Ceramica
Pavim. Cucina
Ceramica
Pavim. Bagno
Ceramica

Accessori: Aria Condizionata, Doppi Vetri, Passaggio Automobilistico, Porta Blindata, Ripostiglio, Stufa a Pellet, Zanzariere

Mappa
VIA TRIESTE 14, Martinengo (BG)
Richiedi informazioni
Invia
Condividi su